Проект на къща в гр. София

  • ID 940
  • 3 етажа
  • 5 стаи
  • 3 спални
  • 4 бани
  • Застроена площ 89 кв.м.
  • Обща площ 251 кв.м.

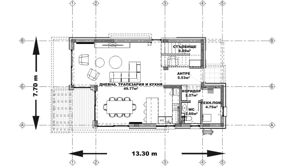
  • Широчина на сградата 13.3 м.
  • Дължина на сградата 7.7 м.
ЕтажиНетоБруто
Първи етаж71.6 кв.м.88.97 кв.м.
Втори етаж83.51 кв.м.108.41 кв.м.
Трети етаж49.31 кв.м.54.01 кв.м.
Общо:204.42 кв.м.251.39 кв.м.

Над 800 проекта бяха изпълнени благодарение на ресурси част от ТОЗИ наръчник за мечтаната къща

Етажни планове

План на първи етаж

План на първи етаж

План на втори етаж

План на втори етаж

План на трети етаж

План на трети етаж

Техническа информация

Функционалност

Надземни етажи 3
Стаи 5
Спални 3
Бани/WC 4
Балкони/Тераси 1
Брой коли 0
Подземен етаж Не

Обща информация

  • Фаза на проектиране
    технически проект
  • Етап на строителство
    строеж
  • Местоположение
    в.з. Горна Баня, гр. София
  • Тип покрив
    Многоскатен

Архитектурно-строителни данни:

  • Вид на конструкцията
    Монолитна стоманобетонна
  • Ограждащи/преградни стени
    Тухлена зидария от керамични блокове
  • Материал на покрива
    10° (17.6%)/30° (57.7%); Керамични керемиди
  • Топлоизолационна система
    Външна ефективна топлоизолация - EPS или каменна вата
  • Вид на дограмата
    PVC или алуминиева дограма с двоен или троен стъклопакет
  • Материали по фасада
    Минерална мазилка, Декоративни HPL панели, Облицовка от широкоформатен гранитогрес, Декоративни елементи

Ситуиране на къщата в парцела

Жилищно строителство

Жилищно строителство

Вилно строителство

Вилно строителство

Допълнителна галерия

Проект на къща в гр. София
Проект на къща в гр. София
Проект на къща в гр. София
Проект на къща в гр. София
Проект на къща в гр. София
Проект на къща в гр. София
Проект на къща в гр. София
Проект на къща в гр. София
Проект на къща в гр. София
Проект на къща в гр. София
Проект на къща в гр. София

Описание на проекта

Проект на къща в гр. София проектирана от архитектурно студио Ай Ес Пи Дигитален Дизайн

Допълнителни услуги

Модифициране на проект на къща

С какво сме различни?

Подробен 3D модел на сградата, който изяснява формата и функцията в пълнота още в етапа на проектиране

Бързина на проектирането без компромис с качеството

Анализ на различни варианти и опции и визуализирането им още в начален етап

Функционални планове

Модерен архитектурен софтуер, който минимизира възможните грешки

Визуализация на бъдещия ви обект Визуализация на бъдещия ви обект
Разгледайте други проекти от Еднофамилни къщи:

Още проекти

Очакваме вашите коментари и въпроси:

Коментари и Въпроси

Допълнителна информация за проекта и поръчката ви

Визуализациите са илюстративни

Представените изображения са компютърно генерирани фотореалистични образи на сградата, които показват идеята на архитекта. Те визуализират една от многото възможности за завършване на фасадата на сградата. Тяхната основна цел е да изобразят къщата в околната среда по възможно най-реалистичния начин, за да може обитателите да възприемат сградата още преди тя да бъде построена. Цветовете и текстурите на реално изпълнената сграда може да се различават от компютърните изображения.

Фасадните материали могат да бъдат променяни

Визуализациите изобразяват идеята на архитекта и неговото желание да постигане завършен и естетичен образ използвайки конкретни материали по фасадата. Въпреки това, красотата на сградата е строго субективна и затова външната визия може да бъде редактирана според желанията и предпочитанията на възложителите. Всички цветове и материали могат да бъдат променяни, заменяни или премахнати според конкретните нужди.

Всички планове и изображения са предмет на авторско право

Представените визуализации и планове са авторски продукт и плод на архитектурния труд на екипа проектанти на “Ай ЕС Пи Дигитален Дизайн” ООД. Те са изключителна интелектуална собственост на фирмата. На основание член 35 от Закона за авторското право и сродните му права използването на което и да е изображение за търговски, маркетингови и други цели, без изричното писмено съгласие на фирма “Ай ЕС Пи Дигитален Дизайн” ООД е строго забранено.